
化工厂种类繁多,不同性质的粉未直接影响了除尘器的布袋以及其它配件的选择。由于化工厂粉尘比较微细,粉尘治理普遍采用的是布袋除尘器,清洁度高,对于一些贵重粉尘可以有效的回收。 化工厂在生产线生产过程中有混料、磨料、出料等工序,该工序在运行过程中会产生一定量的粉尘,如不直接处理,会对员工健康和车间环境造成一定的影响,如直接外排会给周围环境带来一定的影响,根据环保法规和环保部门的要求,必须对其进行治理。本着运行管理简单、技术先进可靠、价格合理的原则,并结合该厂的实际情况,我们如下化工厂专用除尘器处理方案。
1、制作好的收集系统能有效的收集粉尘,能使车间内的粉尘减少到最低限度,除尘设备除尘效率达95%左右 ;
2、工艺成熟可靠,长期稳定、节约、先进的技术;
3、充分利用原有条件,布局紧凑合理,建筑与周围环境协调一致;
4、应用操作与管理简便的技术节省动力消耗和运行费用;
5、选用设备运行稳定、使用寿命长。
化工厂除尘器工作原理
含尘气体经集尘罩收集经风管将其收集再经风机引入布袋除尘器,经由分风挡板废气粉尘均匀分布在每支滤袋上,经滤袋过滤,粉尘被阻留在滤袋外壁,净化后的气体通过滤袋经排气管排出。当滤袋表面负荷的粉尘增加达到一定的阻力时,通过脉冲动振动装置,使上部吊挂滤袋的框架作往复运动,使滤袋内部粉尘脱落至灰斗中。
化工厂生产线粉尘总量
1、混料及人工投料工序处除尘:混料及人工投料工序除尘,采用上部伞形罩,在粉尘飞散时加以捕集,伞形罩尺寸为1400*1400mm。粉尘排放量:Q=(W+B)HV(W为罩口长度,B为罩口宽度,H为混料缸到罩口距离,V取0.75);则粉尘排放量共约为Q=(1.4+1.4)*0.6*0.75*3600*8=36000m³/h
2、挤出工序处除尘:挤出工序除尘,采用上部伞形罩,在粉尘飞散时加以捕集,伞形罩尺寸为1200*1200mm。粉尘排放量:Q=(W+B)HV(W为罩口长度,B为罩口宽度,H为混料缸到罩口距离,V取0.75);则粉尘排放量共约为Q=(1.2+1.2)*0.6*0.75*3600*8=31104m³/h
3、出料口处除尘:出料口处除尘,采用半密闭罩,阻断粉尘的飞散途径,将粉尘集中于集尘罩内,同时通过风机的引力,将粉尘抽至除尘器。粉尘总排放量约为3000 m3/h
4、磨机清洗时的除尘:磨机清洗时的除尘,采用移动式上部伞形罩,在粉尘飞散时加以捕集,伞形罩尺寸为1400*1000mm。 粉尘总排放量,混料部分约为36000 m3/h,挤出、出料、磨机等部分约为32104 m3/h,设计两套处理系统,一套处理风量约为36000 m3/h;一套处理风量约为34000m³/h。


|
|
|
||||||||
|
||||||||
|
||||||||
![]() |
||||||||
|
||||||||
|
||||||||
|
||||||||
|
|
||||||
|
||||||
|
||||||
|
||||||
|
|
||||
|
|
||||
|
||||
|
|
![]() |

欢迎您电话咨询 24小时免费热线15355819468★以上为常见设备参数,如有特殊工况需求或需要了解详细信息。
|
|
|
HMC系列锅炉布袋除尘器外形图 |
|
|
HMC系列锅炉布袋除尘器参数 |
![]() |
|
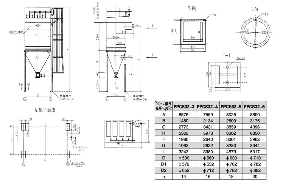
PPCS32系列锅炉布袋除尘器外形图 |
![]() |
|
说明: 1、出风口位置允许在净化箱的端部,侧部或底部开孔,孔径与进风管直径相同; 2、进风口位置,也可在图中相对称的位置,现场安装时,将灰斗旋转180°即可; 3、爬梯也可布置在收尘器的另一端; 4、立柱的高度为参考尺寸,用户可根据现场实际布置; 5、一般除尘器不配备保温层,若用户需要请注明。 |
|
PPCS32/64布袋除尘器系列参数 |
![]() |
|
PPCS64系列布袋除尘器外形图 |
![]() |
|
说明: 1、进风口和出风口可以相互调换,但风管中的斜隔板应掉头安装,订货时应注明; 2、爬梯也可布置在收尘器的另一端; 3、卸灰阀可安装在收尘器另一端的对称位置,但灰斗底板和输送机的传动装置要掉头安装; 4、立柱的高度为参考尺寸,用户可根据现场实际布置; 5、一般除尘器不配备保温层,若用户需要请注明; |
|
|
三种不同的维修方式,可根据自己的实际情况进行选择 |
|
|
集中控制便于集中观察各设备的运行情况,同时减少成本投入,该控制柜主要用于 |
|
|
|
|
|||||||
|